Beschrijving
Welkom aan De Kline 22 in het gemoedelijke Bitgum! Deze moderne woning, gebouwd in 2007, is recent gemoderniseerd, van alle gemakken voorzien, energiezuinig en gelegen in een kindvriendelijke omgeving. Door de goede isolatie, kunststof kozijnen voorzien van HR++ glas, een warmteterugwinunit (WTW-unit) en zonnepanelen, is deze woning gewaardeerd met een energielabel A. Dit betekent niet alleen lagere energiekosten, maar ook meer mogelijkheden voor een hypotheekaanvraag. Door de aanwezigheid van 3 (mogelijk 4) slaapkamers, een garage en fijne zonnige achtertuin is deze woning heel geschikt voor starters die een woning zoeken ‘op de groei’, gezinnen en doorstromers.
Ligging:
Deze prachtige woning is gelegen in het rustige en groene terpdorp Bitgum. Er is goede verbinding met onder andere Leeuwarden en Franeker (beide gelegen op circa 15 autominuten). Diverse speelveldjes en wandelroutes zorgen voor vertier en frisse lucht. Het dorp heeft goede voorzieningen gezamenlijk met de buurdorpen Bitgummole en Ingelum. Zoals basisscholen, een dorpshuis, sportvelden, middenstand en enkele horecagelegenheden.
De indeling van de woning is als volgt:
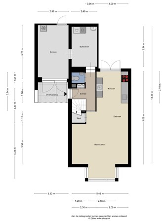
Begane grond:
De begane grond van de woning is ruim en praktisch ingedeeld, met een heldere doorstroming tussen de verschillende leefruimtes. De hoofdentree bevindt zich onder een overkapping aan de voorzijde van de woning. Vanuit de hal zijn het toilet, een bergkast en de doorgang naar de woonkamer bereikbaar.
Centraal in de woning ligt de royale woonkamer (ca. 5,49 m x 5,35 m), die in open verbinding staat met de eethoek en de aan de achterzijde gesitueerde keuken (ca. 3,94 m x 3,10 m) uit 2020 welke is voorzien van inbouwapparatuur en Quooker kraan. Deze opstelling zorgt voor lichtinval en een prettige leefruimte. De openslaande deuren geven een mooie verbinding met de tuin.
Aan de achterzijde bevindt zich tevens een bijkeuken (ca. 2,49 m x 3,94 m) welke uitermate geschikt is voor was-droog voorzieningen en opslag, met directe toegang tot de garage (ca. 2,99 m x 5,26 m). Deze functionele zone is ideaal voor opslag, techniek.
Eerste verdieping:
De eerste verdieping biedt een comfortabele indeling met drie volwaardige slaapkamers, een badkamer, een overloop en een vaste kast. De ruimtes zijn logisch gepositioneerd rondom de centrale overloop, die toegang biedt tot alle vertrekken.
Aan de voorzijde van de woning bevinden zich twee slaapkamers, beide met goede lichtinval en functionele afmetingen (circa 11 m2 en 10 m2). Aan de achterzijde ligt een derde slaapkamer, ruim opgezet (circa 11 m2) en geschikt als hoofdslaapkamer of werkruimte.
De badkamer (2022) is centraal gesitueerd en voorzien van daglicht. De indeling biedt ruimte voor een douche, wastafel met meubel en verwarmde (infrarood) spiegel, tweede toilet en whirlpool, met voldoende bewegingsvrijheid.
Zolderverdieping:
De zolderverdieping biedt door de recent aangebrachte vaste trap volop mogelijkheden voor een extra slaapkamer en functioneel gebruik. Centraal op de verdieping bevindt zich een overloop, met toegang tot praktische bergruimte. Deze kasten zijn slim geïntegreerd onder het schuine dakvlak en bieden veel opbergruimte.
Aan de voorzijde is een royale kamer gesitueerd die, na afwerking, uitstekend dienst kan doen als vierde slaapkamer, werkkamer of hobbyruimte. Dankzij de aanwezige dakramen en het verticale raam in de gevel is er voldoende daglicht en ventilatie.
Op deze verdieping is tevens de WTW-installatie (warmteterugwinning) geplaatst, wat bijdraagt aan een energiezuinig binnenklimaat. De technische ruimte is netjes weggewerkt en goed bereikbaar voor onderhoud.
Tuin:
De tuin is met zorg aangelegd en vormt een verlengstuk van de woning, met volop ruimte voor ontspanning, buitenleven en groenbeleving. Direct grenzend aan de woning bevindt zich een royaal terras met grote tegels en een stijlvolle houten pergola, die zorgt voor beschutting en sfeer. Hier is voldoende plaats voor een grote eettafel en loungehoek, ideaal voor lange zomeravonden en buitenmaaltijden.
Langs de erfgrens is een houten schutting met beton-staanders geplaatst die zorgt voor privacy, gecombineerd met een verhoogde border van gestapelde natuurstenen waarin diverse sierheesters en wisteria zijn aangeplant. De beplanting is onderhoudsvriendelijk en biedt jaarrond kleur en structuur.
Achterin de tuin bevindt zich een overkapping met glazen schuifpui, perfect als lounge- of hobbyruimte. De tuin is bereikbaar via een bestrate zijpad langs de woning, dat ook toegang biedt tot de garage en overkapping. Of via de handige achterom.
Bijzonderheden:
• Instapklare woning mét garage (2022)
• Woonoppervlakte 133,10 m²
• Bouwjaar 2007 en optimaal geïsoleerd
• Energielabel A
• C.V.-ketel (ATAG i36ECZ, 2022)
• Zonnepanelen (9 stuks, 2023)
• Tuin gelegen op het gunstige Zuiden
• Warmteterugwinunit
• Voorzien van kunststof kozijnen met HR++ glas
Meer weten? Wacht dan niet langer en neem contact op. We plannen graag een afspraak voor bezichtiging met je in.
Deze informatie is door ons met de nodige zorgvuldigheid samengesteld, veelal aan de hand van de door verkoper aan ons ter hand gestelde gegevens en tekeningen. Onzerzijds wordt echter geen enkele aansprakelijkheid aanvaard voor enige onvolledigheid, onjuistheid of anderszins, dan wel de gevolgen daarvan. Dit geldt voor onder meer de opgegeven maten, oppervlakten, isolatie en ouderdom van technische installaties.