Beschrijving
"Te koop, een lyts gaadlik hûske in Tietjerk, bouwjaar 1934", zo luidde de advertentie in de krant omstreeks 1974 toen deze geweldige plek voor het laatst te koop werd aangeboden. Nu, een halve eeuw later hebben wij het genoegen om deze woning aan u aan te bieden. Inmiddels weliswaar een stuk minder 'lyts' (klein) maar tenminste net zo 'gaadlik' (geschikt) als 50 jaar geleden.
Wij nemen u graag mee in een ronde door de woning:
Bij aankomst nemen wij u mee door de boeren(voor)deur, waarnaast nog een porseleinen potje hangt dat herinnert aan vervlogen tijden. Door de hal lopen we de woonkamer (50,5m2) in. Deze ruimte biedt een bijna panoramisch uitzicht over de landerijen. U zult de seizoenen ervaren zoals u dat nog nooit heeft gedaan. De houtkachel draagt zeker bij aan deze beleving in de koude maanden. Aansluitend de eetkamer, die is verbonden met de halfopen keuken (2000). De openslaande deuren verbinden binnen met buiten door lichtinval en frisse lucht en geven toegang tot het terras.
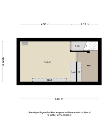
Terug door de woonkamer bereiken we de bijkeuken/hal die ons brengt bij de slaapkamer (20,9m2) op de begane grond. De combinatie met de badkamer (2006) die aan de andere kant van de hal is, maakt deze woning geschikt voor toekomstbestendig wonen. In deze hal treft u eveneens het toilet. We lopen door naar het einde van de gang. Hier treffen we de nieuwe CV ketel (2025) aan, een uitgang naar de achtertuin en de doorgang naar de aangebouwde (1979) stenen garage (28m2) die volledig is onderkelderd (24m2) en voorzien van een zolder die met vlizotrap bereikbaar is.
Terug door de hal en woonkamer bereiken we de trap naar de eerste verdieping. We komen aan op de overloop welke tevens dienst doet als hobbyruimte en eenvoudig ingezet kan worden als kantoor (ca 8m2). Door de deur vervolgt de overloop zich na een opstapje met aan weerszijden twee slaapkamers (ca. 11m2 en 6m2).
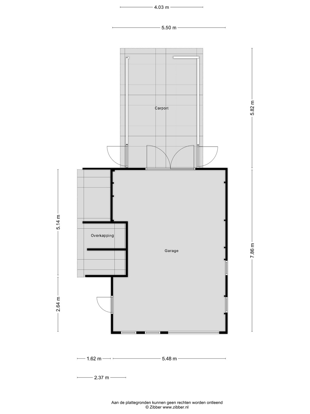
Op het perceel staan diverse handige bergingen en een kas voor het verbouwen van kruiden, fruit of groenten. Ook is er een degelijk gebouwde vrijstaande houten garage (43m2) met gemetselde borstwering, voorzien van carport (23,5m2) aan de achterzijde voor stalling van bijvoorbeeld een boot, caravan of camper. Dit is uiteraard afhankelijk van het formaat.
En dan de tuin... Zo ziet u ze niet vaak. Over een periode van 50 jaar met liefde aangelegd en onderhouden. Hier heb je alle ruimte voor je hobby's, sport en spel. Van voetballen, slingeren aan de boom, schommelen, verstoppertje spelen, barbecueën, kamperen in eigen tuin en ga zo maar door. Er is een verscheidenheid aan beplanting waar verkoper u álles over kan vertellen.
U raakt niet uitgekeken, met iedere dag een nieuw beeld van de zonsopkomst en zonsondergang, een verscheidenheid aan dieren die uw perceel zullen doorkruisen en te zien zijn in de omliggende weilanden én in de lucht! Iedere dag is anders, maar altijd even prachtig. Verkoper omschrijft het in drie woorden, pakkend en alleszeggend: "Ruimte, Vrijheid en Geluk".
Bijzonderheden:
- Energielabel D
- Perceel van 2.850 m2 (!)
- Woonoppervlak van 145,40 m2
- Overige ruimte 114,50 m2
- Fruitbomen en kas voor eigen oogst
- Ruimte voor álles wat u maar wenst
Deze presentatie is met zorg en aandacht opgesteld. Het betreft echter geenszins een opsomming van garanties van verkoper of Feenstra Wonen aan geïnteresseerden en kopers. Zowel verkoper als Feenstra Wonen aanvaarden geen enkele aanspraken als gevolg van druk of zetfouten.