Beschrijving
Op zoek naar een gezellige, goed onderhouden woning in een geliefde buurt waar zowel starters als doorstromers hun woondroom kunnen verwezenlijken? Pastorijleane 11 in Tzum biedt je een thuis waar ruimte, comfort en een heerlijke tuin samenkomen. Een veelzijdig huis dat perfect is toegesneden op starters, gezinnen én levensloopbestendig wonen. Kortom, hier hoef je nooit meer weg.
Wandel binnen en laat je verwelkomen door een prettig warme sfeer en veel lichtinval. De woonkamer is voorzien van een praktische laminaatvloer en een fijne airco voor de warme zomerdagen óf om snel op te warmen op hele koude dagen.
De gesloten keuken is voorzien van een strakke plavuizenvloer. De inbouwapparatuur is al eens vernieuwd en het granieten keukenblad is tijdloos. Het voordeel van een gesloten keuken is dat het de geurtjes uit de woonkamer houd en jouw visite de voorbereidingen van jouw kookkunsten niet kan zien.
Aangrenzend aan de keuken tref je de ruime bijkeuken welke is voorzien van kraan met gootsteen en aansluitingen voor een was-droogopstelling.
Via de bijkeuken loop je direct door naar de bijzonder ruim bemeten garage (3,28 x 9,68m !) met elektra en elektrische overhead deur.
Indeling: entree, hal met plavuizen, toilet met fonteintje, trapopgang, vernieuwde meterkast, woonkamer met vrij uitzicht, woonkamer met zijraam met zicht op de oprit, gesloten keuken met granieten aanrechtblad met diverse inbouwapparatuur o.a. close in boiler, koelkast, gaskookplaat, combimagnetron, afzuigkap en vaatwasser, inpandige bijkeuken, zeer ruime garage met elektrische garagedeur, diepe en royale achtertuin op het zuiden met nette bestrating en schuttingen.
De achtertuin beschikt over veel privacy.
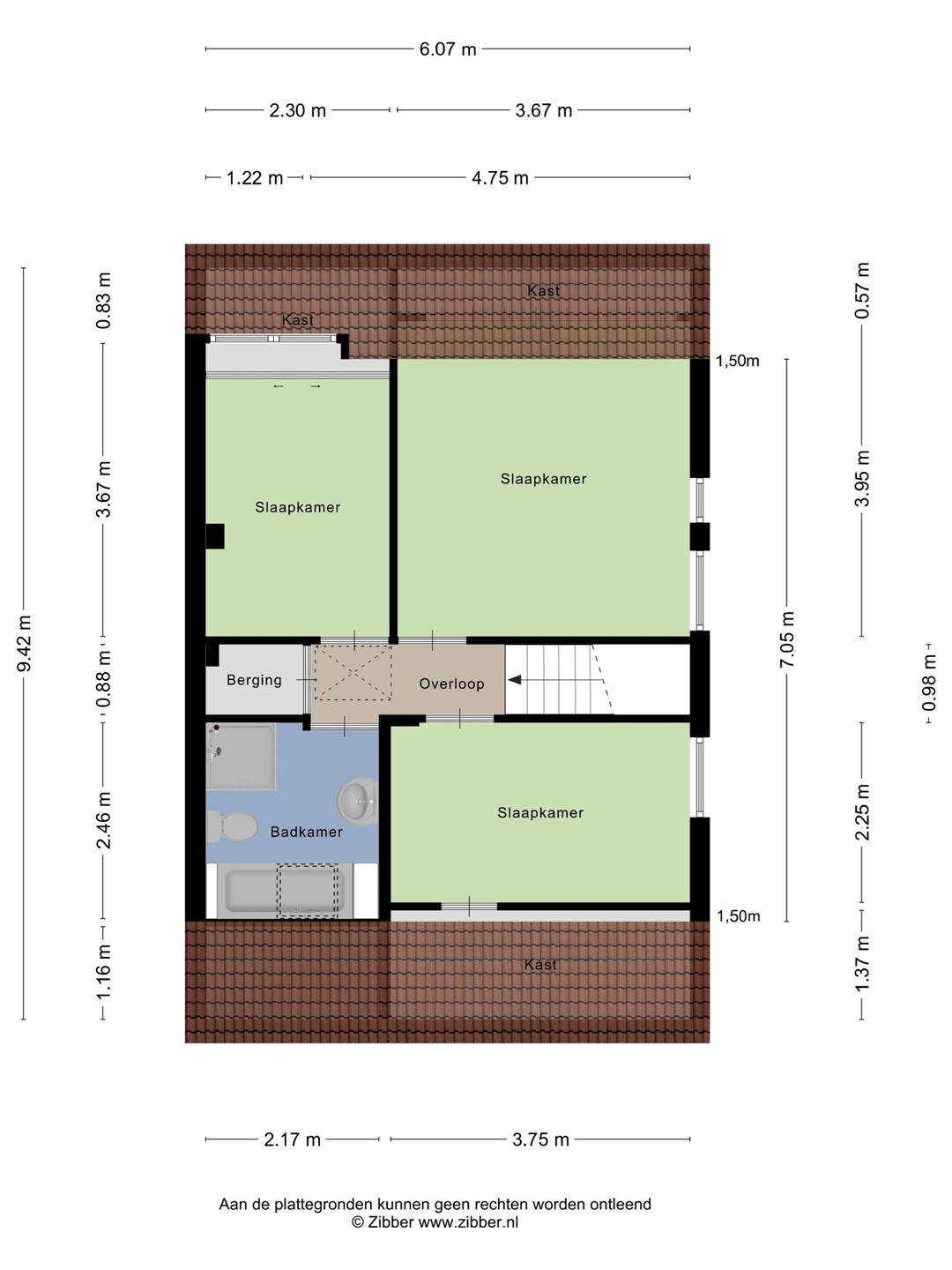
Eerste verdieping: overloop, 3 slaapkamers met laminaat vloeren, waarvan één slaapkamer met airco, nette badkamer voorzien van douchecabine, ligbad, wastafel, toilet, design radiator, dakvenster en mechanische ventilatie, via een vlizotrap kun je naar de bergzolder.
Bijzonderheden:
- Mooie woonstand op groot perceel in prachtige woonomgeving
- Centraal gelegen tussen Franeker, Harlingen, Winsum en Wommels;
- Schilderwerk dateert van 2022 (uitgevoerd door schildersbedrijf Wittebroek);
- Prettige kindvriendelijke woonomgeving;
- CV dateert van 2018 en wordt jaarlijks onderhouden (Mensonides);
- Voorzien van 9 zonnepanelen welke dateren van 2019 (Mensonides);
- Meterkast vernieuwd in 2019 (Mensonides);
- Airco in woonkamer en slaapkamer 2021;
- Waterontharder uit 2017 (Waterluxe Harlingen);
- Energielabel C.
Tzum (Fries: Tsjom) is een terpdorp en ligt ongeveer vier kilometer ten zuidoosten van Franeker. Tzum maakt deel uit van de gemeente Franekeradeel, provincie Friesland (Nederland). Het telt 1164 inwoners (2014). Het dorp beschikt over een basisschool, peuteropvang, kerk, dorpshuis, voetbalvereniging, tennisvereniging, kaatsvereniging, gymnastiekvereniging, muziekkorps, bakker en een slager, overige voorzieningen zijn op kleine afstand te vinden in Franeker.
Meer weten? Wacht dan niet langer en neem contact op. We plannen graag een afspraak voor bezichtiging met je in.